Специальное предложение: Клубный дом PLAZMA
Ведётся строительство многоэтажного жилого дома со встроенно-пристроенными объектами торговли, общественного питания, бытового обслуживания, административными помещениями, паркингом на нижнем уровне. Участок под застройку жилого комплекса находится в 42-м комплексе города Набережные Челны по пересечению проспектов Хасана Туфана и Чулман.
Отведённый участок расположен на границе природоохранной зоны парка Прибрежный.
Продажа квартир в Клубном доме PLAZMA : (8552) 760-360
Жилой комплекс «Plazma» для вас ― это:
- Улучшенная планировка квартир;
- Многоуровневый подземный паркинг на весь комплекс;
- Встроенные офисные и торговые помещения;
- Замкнутая внутриквартальная площадка;
- Эксплуатируемая кровля;
- Круглосуточная охрана, консьерж-департамент;
- Система «Умный дом».
Начало строительства ― III квартал 2012 г.
Окончание строительства ― IV квартал 2014 г.
Месторасположение
Участок строительства расположен в 42-м микрорайоне, на пересечении проспектов Хасана Туфана и Чулман - показать на карте.
Ранее на участке находилось незавершенное строительством административное здание, которое на данный момент демонтировано.
Здание
Общая площадь помещений ― 11960,6 м2, в том числе:
- Квартиры 4265 м2
- Офисные помещения 2703,24 м2
- Автостоянки 1795,65 м2
- Торговые помещения 60 м2
- Кофейня 68,81 м2
Жилая площадь квартир ― 645,1 м2
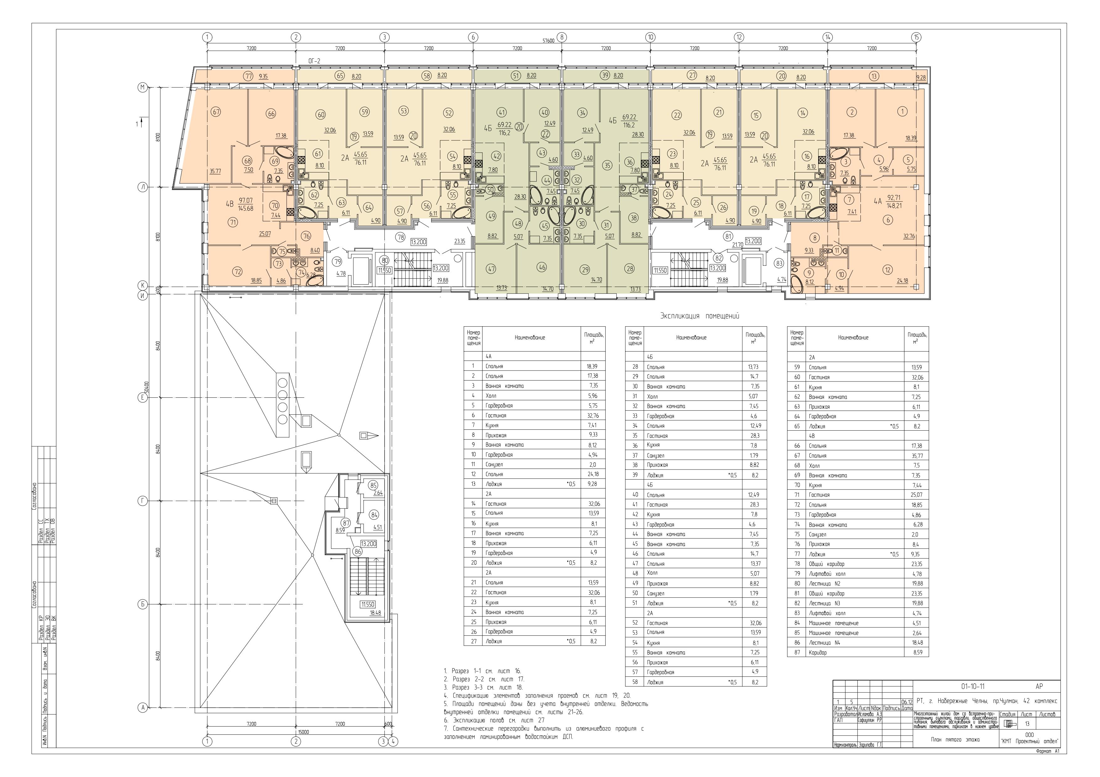
Количество квартир ― 40, из них 20 двухкомнатных и 20 четырехкомнатных (по проекту). Наличие свободной планировки позволяет скорректировать количество комнат в квартире от 1 до 5 по согласованию с заказчиком.
Количество этажей ― 7, в том числе 1 цокольный этаж.
Документация










